Matériau : bois massif, épicéa du Nord
Épaisseur des parois : madriers 40mm
Couleur : marron
Hauteur faitage : 232cm
Hauteur parois : 226cm
Surface totale : 15,04m²
Toit en bois massif : voliges 20mm
Lames anti-tempêtes fournies
Plancher INCLUS
Garantie : 5 ans
» Voir tous les détails techniques » Voir tous les détails techniques
L’avis du spécialiste sur l’abri cloisonné en bois massif traité marron 40mm MODERNE 15m² de Gardy Shelter
Vous avez besoin d’un espace supplémentaire pour stocker vos outils de jardinage et de bricolage, d’un atelier pour travailler à domicile ou d’un coin de détente pour passer des soirées agréables en famille ou entre amis. Le choix idéal, c’est l’abri de jardin au toit plat 40mm de Gardy Shelter qui mettra à votre disposition une surface utile d’environ 13m², divisée en deux par une cloison intérieure équipée d’une porte simple.
Teinté marron et réalisé en épicéa du Nord, cet abri en bois s’intégrera d’une façon harmonieuse dans votre jardin. Il possède une double porte vitrée qui se ferme à clé et 3 grandes fenêtres qui laisseront la lumière naturelle pénétrer librement à l’intérieur de l’abri. Son principal atout, ce sont ses parois, hautes de 226 cm qui vous offriront un beau volume, à utiliser selon vos besoins.
La construction de l’abri moderne 15m² de Gardy Shelter est très robuste et stable. Les madriers de 40mm s’emboîtent grâce aux doubles rainures et languettes. Ils ont subi un traitement en usine insecticide et fongicide classe III. Parfaitement protégés contre les vermines et les intempéries, ils garantiront à votre abri en bois une durabilité à long terme. Vous gagnerez ainsi du temps et de l’argent puisqu’aucun traitement avant le montage n’est nécessaire.
L’abri de jardin au toit plat 40mm de Gardy Shelter est livré avec un plancher en bois massif et des lambourdes traitées autoclave, pour une bonne isolation de l’humidité du sol. Les voliges solides du toit sont couvertes d’un feutre bitumé comme sous-construction de base. Il est fortement recommandé d’ajouter une bâche EPDM ou PVC qui apportera à votre abri en bois une meilleure étanchéité.
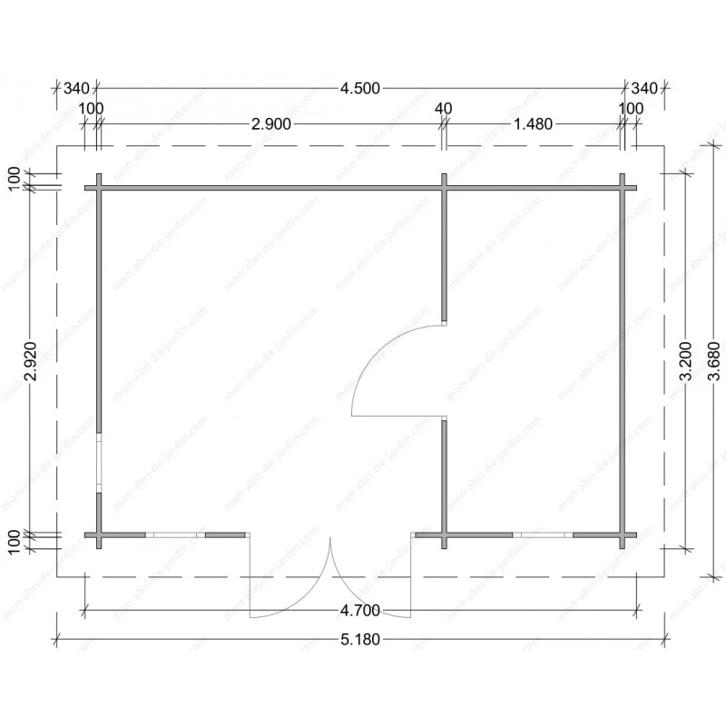
Quelques données techniques :
. Porte intérieure : simple, pleine, fermeture à clé, dimensions porte : 850 x 1900 mm
. Hauteur intérieure : au point haut – 2326mmm, au point bas – 2232mm
. Mesures depuis la dalle (il faut déduire 65mm pour le plancher) : point haut – 2261mm, point bas – 2167mm
. Possibilité de mettre la fenêtre latérale (initialement à gauche) sur le mur de droite lorsque l’on est face aux portes – c’est possible si vous inversez les parois au moment du montage.




















Avis
Il n’y a pas encore d’avis.