Matériau : bois résineux certifié FSC
Épaisseur des parois : 40mm
Finition : non traité
Hauteur faitage : 232cm
Hauteur parois : 219,5cm
Surface extérieure abri : 11,8m²
Surface extérieure terrasse : 2×2,35m²
Toiture en bois massif : voliges 20mm
Porte en aluminium
Plancher en bois en option
» Voir tous les détails techniques » Voir tous les détails techniques
L’avis du spécialiste sur le bureau de jardin en bois massif avec terrasse 16,5m² – madriers 40mm Gardy Shelter :
Conçu pour devenir votre lieu de travail privé à la maison, le bureau de jardin en bois 16,5m² Gardy Shelter a tout pour vous offrir le confort optimal. La façade est entièrement vitrée grâce à la grande porte composée de 4 vantaux dont 2 fixes et 2 coulissants. Ainsi, vous bénéficierez d’une bonne clarté à l’intérieur, d’une vue magnifique et d’un accès facile. Les deux terrasses sur les côtés et l’avancée de toit sont idéales pour prendre une bouffée d’air frais avant de continuer avec vos tâches professionnelles. Laissez-vous séduire !
Le design tendance de ce bureau de jardin 16,5m² Gardy Shelter combine à merveille le bois massif et l’aluminium laqué anthracite utilisé pour les portes pour accentuer son esprit contemporain. Les madriers épais de 40mm assurent une construction solide et robuste grâce à son emboîtement en simple rainure et languette. Livrés bruts, ils doivent être traités avant le montage pour renforcer leur résistance aux intempéries. Il suffit de lasurer la partie extérieure du bois.
Pour une meilleure isolation de l’humidité du sol, le bureau de jardin 16,5m² Gardy Shelter peut accueillir un plancher de 20mm. Sur le toit, les voliges également de 20mm contribuent à sa stabilité. La finition soignée est mise en valeur par les planches de rives en façade et sur les côtés et par le verre double vitrage des portes.
Le bureau de jardin en bois 16,5m² Gardy Shelter est une pièce supplémentaire haut de gamme qui peut accueillir votre mobilier de bureau et vos affaires afin de travailler en toute quiétude. Réalisez vos rêves en un seul coup !
Quelques données techniques :
Matériau : bois résineux certifié FSC
Finition : non traité
Épaisseur des parois : 40mm
Toiture en bois massif : voliges 20mm
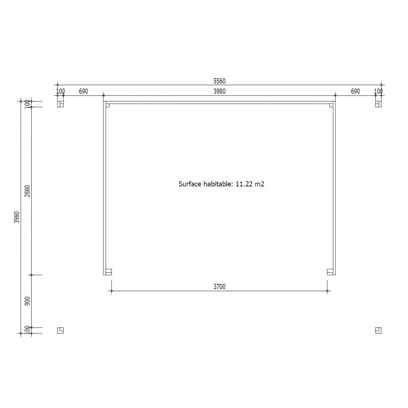
Dimensions intérieures abri (LxP) : 390x290cm
Dimensions extérieures abri (LxP) : 398x298cm
Surface intérieure : 11,31m²
Surface extérieure : 11,86m²
Hauteur faitage : 232cm
Hauteur parois : 219,5cm
2 terrasses
Construction terrasse : poteaux 10x10cm
Dimensions extérieures terrasse (LxP) : 79x298cm
Surface extérieure terrasse : 2,35m²
Porte en aluminium laqué anthracite
Dimensions porte : 370×199,5cm (4 vantaux dont 2 fixes + 2 coulissants)
Verre double vitrage : 4-12-4mm
Plancher en bois en option
Épaisseur plancher : 20mm
Couverture de toit en option
6x rouleaux conseillés
Garantie : 2 ans






















Avis
Il n’y a pas encore d’avis.